Leverage over three decades of industry experience with our specialized financial advisory services for gas stations. Our expertise in efficient logistics, fleet management, accounting, and budgeting ensures your business operates at peak performance and profitability. Optimize your financial health and drive success with our tailored strategies and insights.
Project Overview:
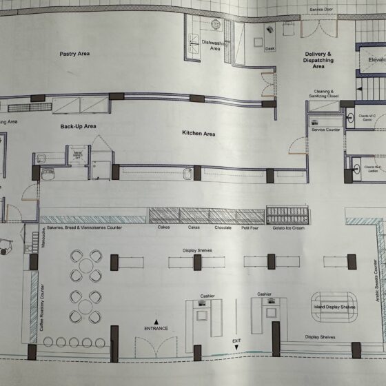
We conducted a comprehensive feasibility study for Bakeville, a promising bakery and confectionary venture based in Msayleh, South of Lebanon. The study aimed to evaluate the viability of establishing a new bakery and confectionary business, focusing on market potential, financial projections, and operational strategies.
Scope of Work:
Market Analysis: Assessed local market demand, competitive landscape, and consumer preferences to identify key opportunities and challenges.
Financial Projections: Developed detailed financial forecasts, including startup costs, revenue projections, and profitability analyses to ensure sound financial planning.
Operational Planning: Provided strategic recommendations for site selection, production processes, and supply chain management to optimize efficiency and quality.
Risk Assessment: Identified potential risks and developed mitigation strategies to address challenges and ensure project success.
Outcomes:
The feasibility study offered Bakeville a clear roadmap for launching their bakery and confectionary business. The project is on track with an anticipated completion date in mid-2025, paving the way for a successful and sustainable operation .



